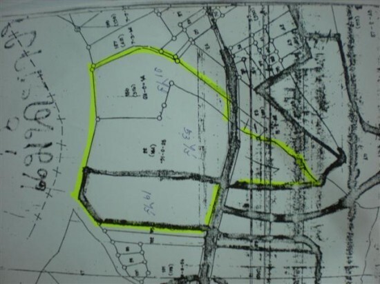
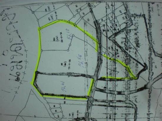
ขายที่ดินติดแม่น้ำบางปะกง 93 ไร่
ขายที่ดิน ติดแม่น้ำบางปะกง 93 ไร่
ที่สวย ติดแม่น้ำทำท่าเรือได้ หน้ากว้าง
หน้าที่ดินติดถนนลาดยาง ได้ที่ฝั่งตรงข้ามถนนอีกแปลง
ขายไร่ละ 3.5 ล้านบาท
สนใจดูรูปที่ดิน (ระวาง)ได้ใน www.sirinuch.com เลือกหัวข้อที่ดินติดแม่น้ำบางปะกง
หรือโทร.สอบถาม และนัดดูที่ 081-9054422
![]() |
| ติดต่อ: | ศิรินุช | อีเมล์: | |
| โทรศัพย์: | 0819054422 | จังหวัด: | ฉะเชิงเทรา |
| คำค้น: | ที่ดินติดแม่น้ําบางปะกง | | ||
ลงประกาศ | เลื่อนประกาศขึ้น | ลบประกาศ | แก้ไขประกาศ
[ รับจำนอง ขายฝาก บ้าน ที่ดิน ทั่วประเทศ กู้เงินง่าย ได้เงินไว ไม่เช็คแบล็คลิส ]
ลงประกาศ | เลื่อนประกาศขึ้น | ลบประกาศ | แก้ไขประกาศ

