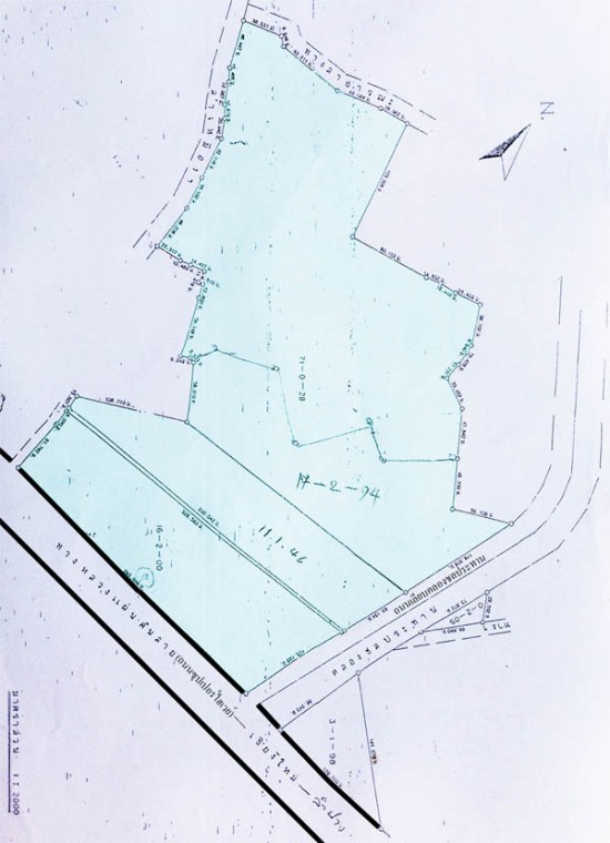
ขายที่ดิน71ไร่28ตร.วา อ.เมือง ลำพูน
ขายที่ดิน ด้านหน้าติดถนน ซุปเปอร์ไฮเวย์กว้าง 210 เมตร
เนื้อที่ 71 ไร่ 28 ตร.วา (เป็นโฉนดและนส.3ก.)
และที่ดินถือครองไม่มีหนังสือแสดงสิทธฺ์ (สามารถขอออกโฉนดได้)
เนื้อที่ 17 ไร่ 2 งาน 94 ตร.วา
ราคารวมทั้งหมด 46,195,500 บาท (ที่ดินที่ไม่มีหนังสือแสดงสิทธิ์ ยกให้ฟรี)
![]() |
| ติดต่อ: | สุบิน ต่อกิตติกุล | อีเมล์: | |
| โทรศัพย์: | 081-724-7681 | จังหวัด: | ลำพูน |
ลงประกาศ | เลื่อนประกาศขึ้น | ลบประกาศ | แก้ไขประกาศ
[ รับจำนอง ขายฝาก บ้าน ที่ดิน ทั่วประเทศ กู้เงินง่าย ได้เงินไว ไม่เช็คแบล็คลิส ]
ลงประกาศ | เลื่อนประกาศขึ้น | ลบประกาศ | แก้ไขประกาศ

