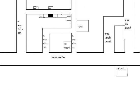
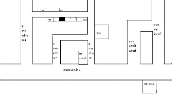
ที่ดินเปล่าให้เช่า 121 ตร.ว. ซ.ลาดพร้าว107
ที่ดินเปล่าให้เช่า 121 ตร.ว. ซ.ลาดพร้าว107 แยก23 ใกล้ม. RBAC สามารถเข้าจากซ.ลาดพร้าว101ได้ เหมาะทำอู่รถ โต๊ะสนุ้กฯ ปลูกผักออแกนิก หรือสำนักงาน ฯลฯ
เดือนละ 10000 บาท (ตกลงกันได้) ถ้าสนใจยินดีถมที่ให้ค่ะ
![]() |
| ติดต่อ: | เอื้อมพร | อีเมล์: | |
| โทรศัพย์: | 0819123540 | จังหวัด: | กรุงเทพมหานคร |
ลงประกาศ | เลื่อนประกาศขึ้น | ลบประกาศ | แก้ไขประกาศ
[ รับจำนอง ขายฝาก บ้าน ที่ดิน ทั่วประเทศ กู้เงินง่าย ได้เงินไว ไม่เช็คแบล็คลิส ]
ลงประกาศ | เลื่อนประกาศขึ้น | ลบประกาศ | แก้ไขประกาศ

